- 產品詳情
- 技術參數
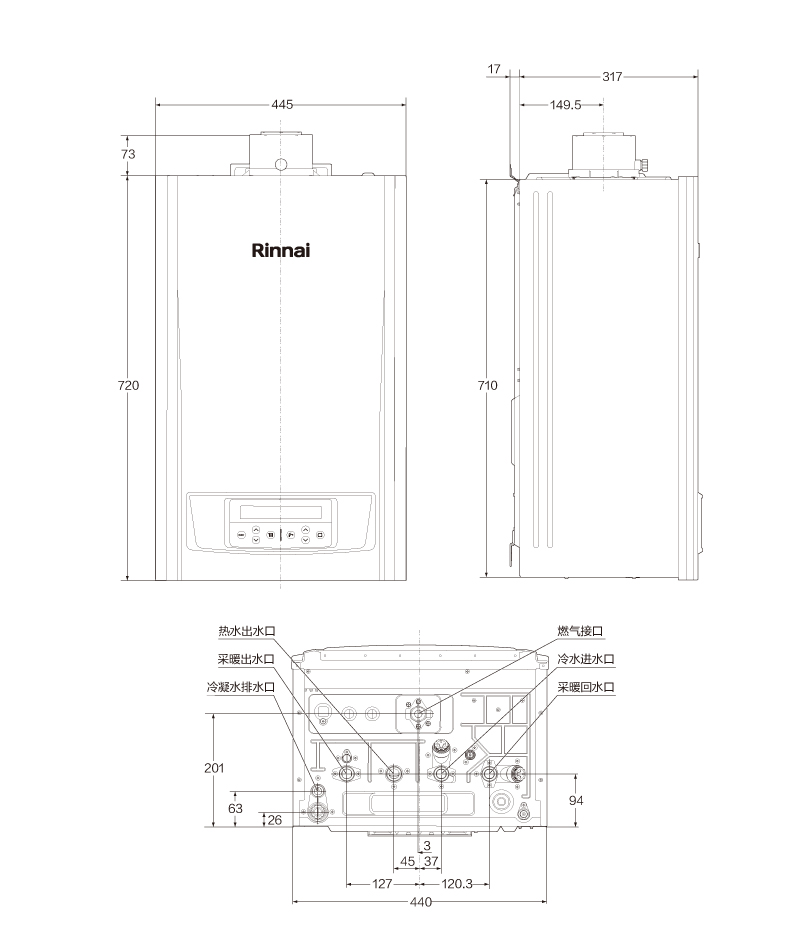
- 安裝示意圖
- 視頻




產品型號 : LL1GBQ35-35RQ85A
產品編號 : RBS-35RQ85A-CY
能效等級 : 1級(GB20665)
NOx排放等級 : 5級(GB25034)
采暖額定熱負荷(kW) : 35.0
采暖最小熱負荷(kW) : 8.4
采暖額定熱輸出(kW) : 32.4
采暖最小熱輸出(kW) : 8.2
采暖額定冷凝熱輸出(50℃/30℃)(kW) : 35.2
采暖最小冷凝熱輸出(50℃/30℃)(kW) : 8.9
生活熱水額定熱負荷(kW) : 35.0
生活熱水最小熱負荷(kW) : 8.4
(Δt=25K)標稱產熱水率 (kg/min) : 18.0
(Δt=30K)標稱產熱水率 (kg/min) : 15.0
采暖溫度設定范圍(℃) : 40~80℃,1℃調節
熱水溫度設定范圍(℃) : 35~50,1℃調節;52~60,2℃調節
最大燃氣流量(m3/h)(Hi=34.02MJ/m3) : 3.7
最小燃氣流量(m3/h)(Hi=34.02MJ/m3) : 0.89
燃氣類別 : 天然氣(12T)
燃氣額定壓力(kPa) : 2
燃氣壓力適用范圍(kPa) : 1.0~3.0
生活熱水系統適用水壓(MPa) : 0.07~1.0
采暖系統最高工作水壓(MPa) : 0.3
膨脹水箱容量(L) : 10
膨脹水箱預設壓力(MPa) : 0.1
循環水泵揚程(m) : 6.5
電源性質 : 220V~,50HZ
額定電功率(W) : 150
最小熱負荷狀態電功率(W) : 105
待機狀態電功率(W) : 3.5
燃氣接口 : R3/4"
供暖及回水接口 : R3/4"
冷水及熱水接口 : R3/4"
冷凝水排水接口 : φ19mm軟管
給排氣管直徑(mm) : φ100/φ60
外形尺寸(mm) : (H)720×(W)445×(D)317
凈重(kg) : 38.4
包裝后重量(kg) : 42.6
電擊防護類型 : I類
外殼防護等級 : IPX5
型號:RBS-35RQ85A-CY
單位:mm
